Ausstellungsküche Nr. R02
Rapperswil SG
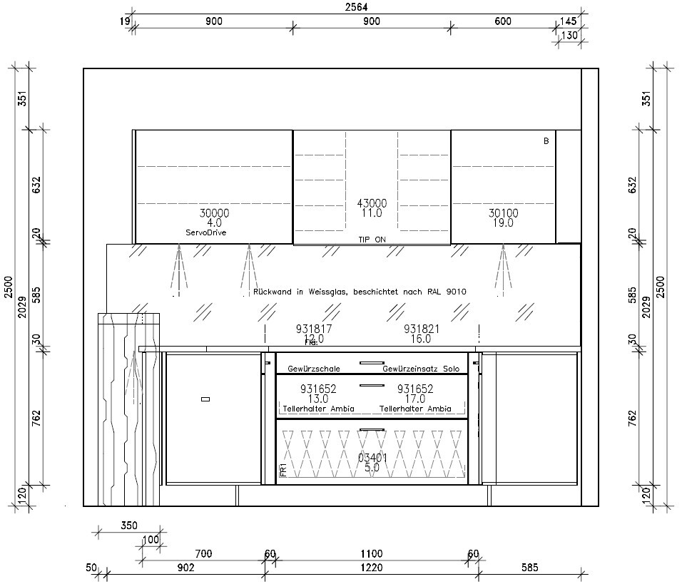
HERZOG VARIO
- Fronten
- Kunstharz beschichtet
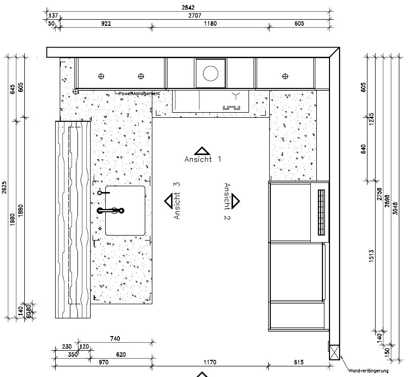
- Abdeckung
- Naturstein-Abdeckung
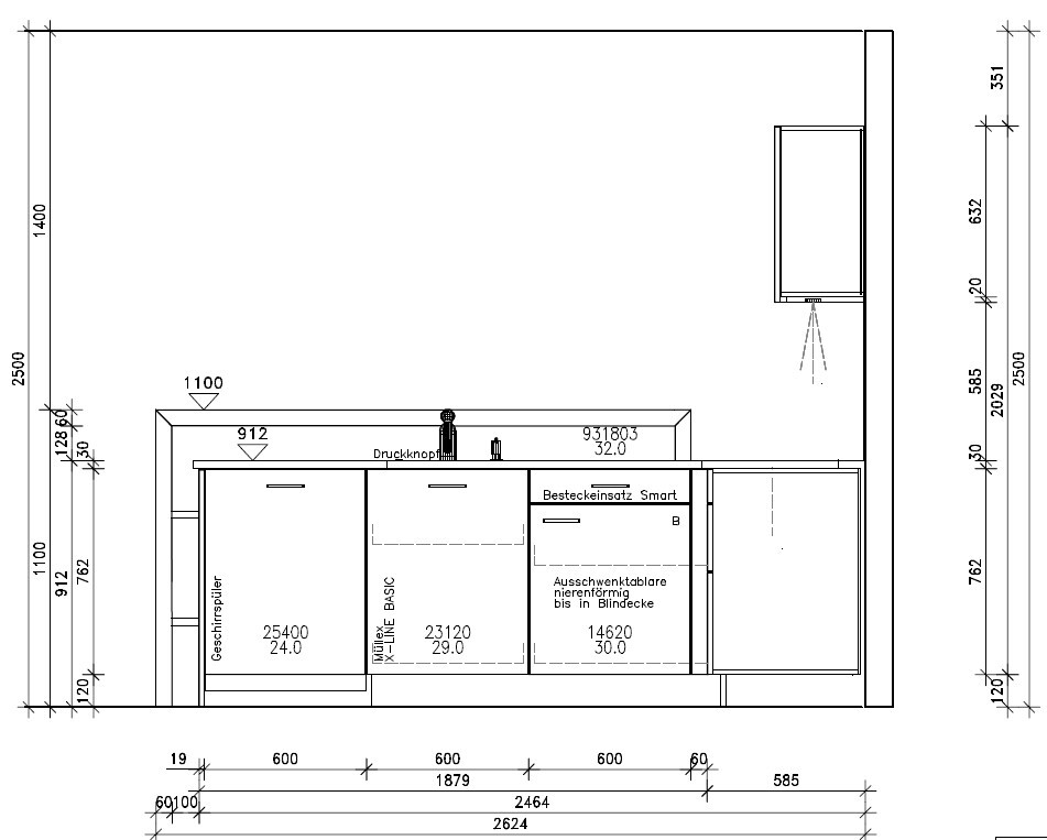
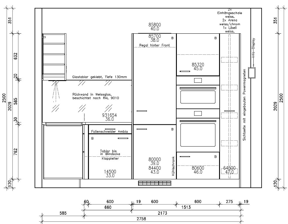
- Apparate
- ELECTROLUX
Induktionskochfeld
Kombi-Steamer
Kombi-Mikrowelle
Geschirrspüler
Kühl-Gefrierkombination
WESCO
Umluft-Dampfabzugshaube
SPÜLTISCH / MISCHER
FRANKE
- Preis
- Bruttopreis CHF 38'637 inkl. MwSt.
- Schnäppchen-Preis
- CHF 14'900 inkl. MwSt. und Montage
- Verfügbarkeit
- ab März 2026 oder nach Vereinbarung